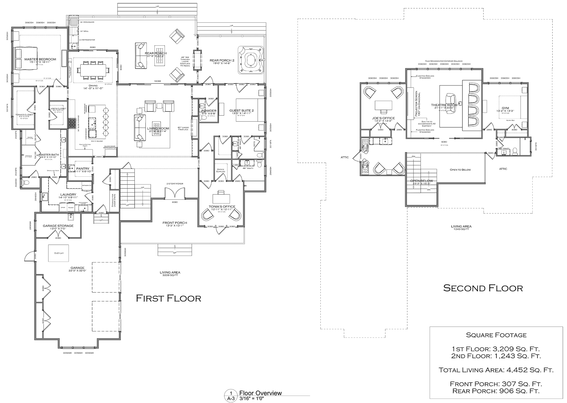
The Sea Cliffimpactmedia2025-02-24T01:09:09+00:00 3 Beds | 4.5 Baths | Office | Gym | 4,452 sqft DOWNLOAD PLAN Share This Story, Choose Your Platform! FacebookXRedditLinkedInWhatsAppTelegramTumblrPinterestVkXingEmail Related Projects The Greenport Gallery The Greenport 4169 Wyndmere Gallery 4169 Wyndmere 198 Portsmouth Gallery 198 Portsmouth 2830 Harborside Gallery 2830 Harborside