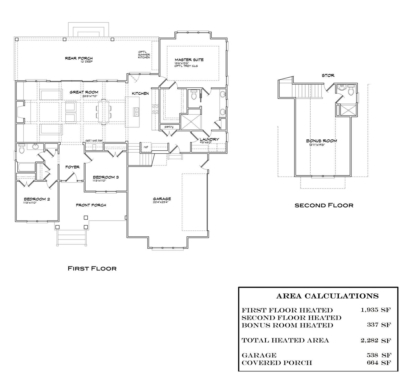
The Manhassetimpactmedia2024-05-24T19:09:07+00:00 3 Beds | 3.5 Baths | Bonus Room | 2,282 sqft DOWNLOAD PLAN Share This Story, Choose Your Platform! FacebookXRedditLinkedInWhatsAppTelegramTumblrPinterestVkXingEmail Related Projects The Greenport Gallery The Greenport The Larchmont Gallery The Larchmont The East Hampton Gallery The East Hampton The Oceanside Gallery The Oceanside