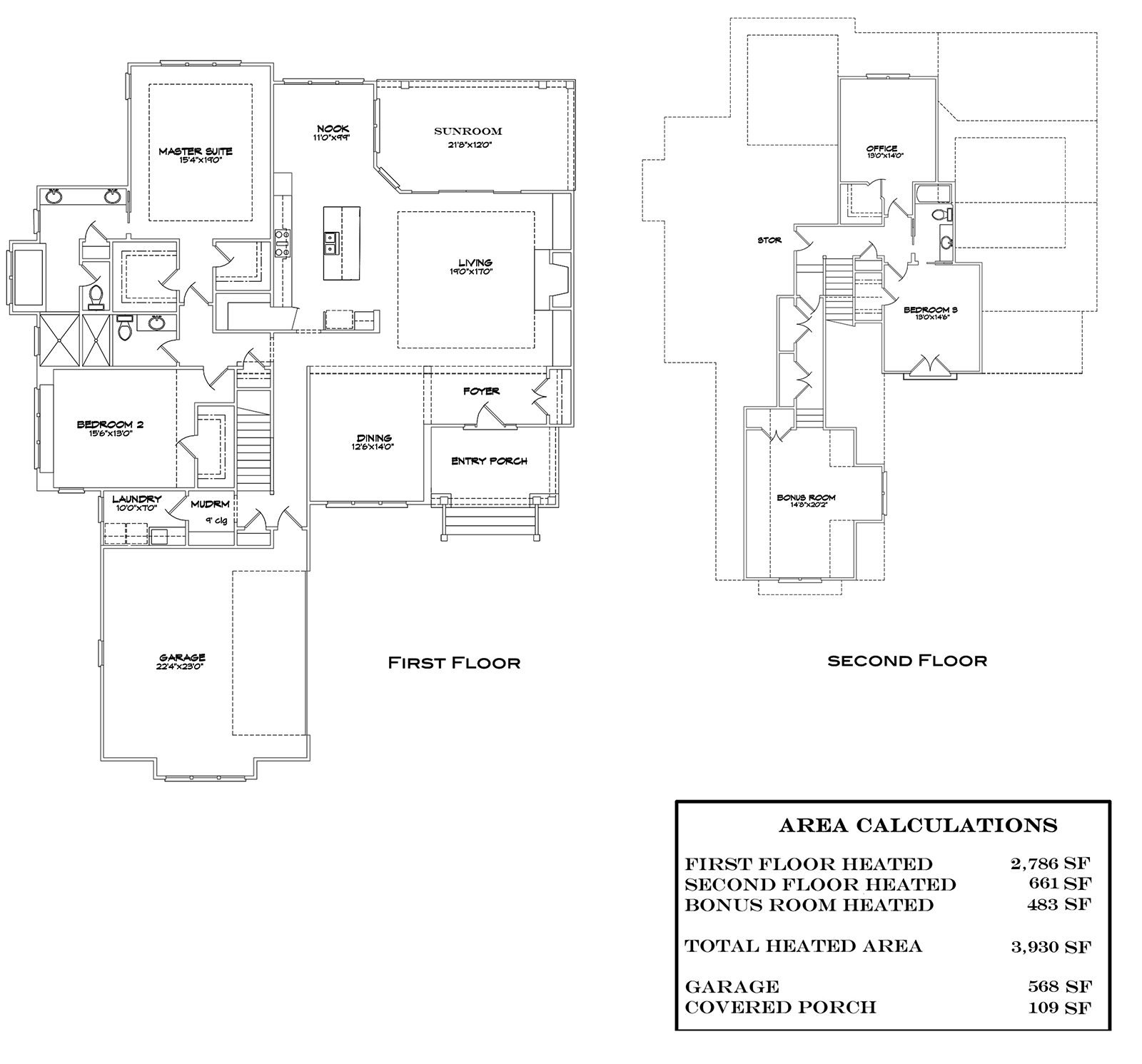
4 Beds | 3.5 Baths | Bonus Room | 3,930 sqft

Schiano Development - Nissequogue
Schiano Development - Nissequogue